Schipluidenseweg 10, Wateringen - Rijnpoort Makelaars
Mijn favorieten
Overzicht
Wateringen, 2291 PC

Schipluidenseweg 10

€ 458.000 ,- k.k.
  • Oppervlakte 215 m²
  • Hoofdfunctie Bedrijfsruimte
Plan bezichtiging

Omschrijving

TE KOOP: Schipluidenseweg 10 te Wateringen.

(Inruil kleiner bedrijfspand in de omgeving behoort tot de mogelijkheden)

Dit pand is gelegen op bedrijventerrein ”Westland Bedrijven Centrum” het bedrijventerrein is gelegen langs de entreeweg naar Wateringen en uitstekend bereikbaar met een directe aansluiting op de A4 ( richting Amsterdam/Rotterdam), A13 (richting Delft/Rotterdam) en A12 (richting Gouda/Utrecht).
Tevens is het openbaar vervoer Tramlijn 16 en 17 richting Rijswijk en Den Haag op 10 minuten loopafstand.
De ligging in de directe omgeving van “Hornbach” verstrekt de attentiewaarde.

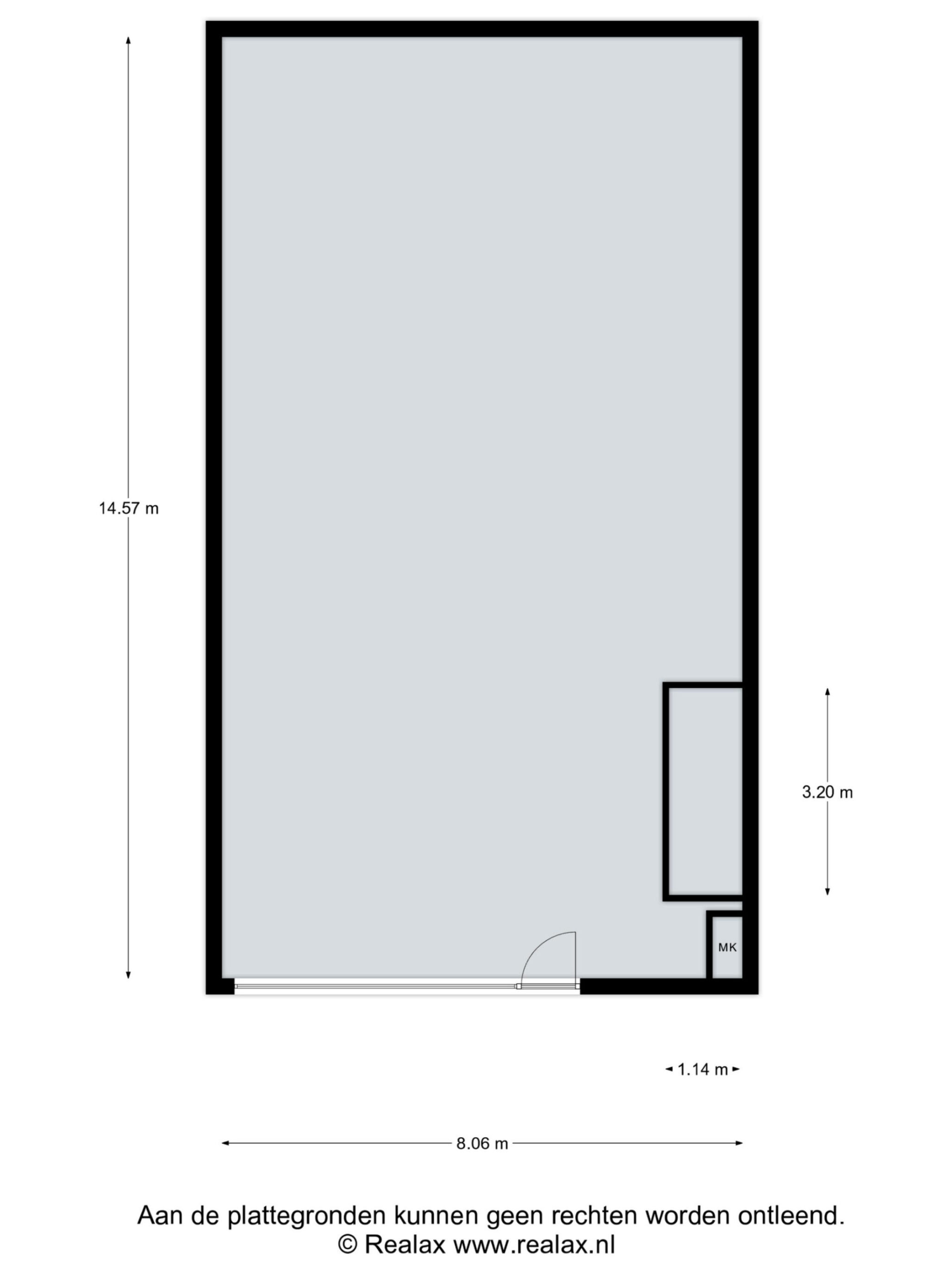
Het betreft hier een modern bedrijfsverzamelgebouw aan de rand van het bedrijventerrein met daarin een bedrijfsruimte van ca. 120 m² op de begane grond en een verdiepingsvloer van ca. 80 m² alsmede ca. 15 m² kantoor/kantine.
Aan de voorzijde zijn 3 eigen parkeerplaatsen gelegen.
Het bedrijfspand is gelegen op zicht locatie langs de doorgaande weg “Dorpskade”

Indeling parterre:
Entree middels aparte loopdeur, meterkast, trapopgang, open bedrijfsruimte bereikbaar middels elektrisch bediende overheaddeur ca. 3,75 x 3,75 m¹ (lxb),
De parterre is v.v. een gecoate betonvloer met een draagvermogen van ca. 1.500 kg/m².

Indeling verdieping:
De verdieping is v.v. ca. 80 m² open opslagruimte en ca. 15 m² kantoor/kantine. Deze is v.v. een keukenblok en airconditioning voor verwarmen en koelen.

In het dak is een lichtstraat aanwezig.

Op het dak zijn recent 20 zonnepanelen geïnstalleerd van elk 440 Wp, met een totaalvermogen van 8.800 Wattpiek.

De bedrijfshal is aangesloten op de gebruikelijke nutsvoorzieningen zoals, gas, water en elektra (220/380 volt).

Parkeren:
Er bevinden zich drie parkeerplaatsen voor het bedrijfspand.

Aanvaarding:
In overleg, per direct.

Vraagprijs:
€ 458.000,– k.k. (geen btw van toepassing)

Huurprijs:
€ 3.000,- per maand (geen btw van toepassing)

Huurperiode
In overleg.

Vereniging van Eigenaren:
Deze is actief, bijdrage € 130,84 per maand. Bij huur niet van toepassing.

Huurbetaling
De huurprijs en het eventuele voorschot servicekosten inclusief de BTW dienen tegelijk en bij vooruitbetaling per maand te worden voldaan.

Huurovereenkomst
Standaard huurovereenkomst ROZ in de zin van artikel 7:290A BW conform het model door de ROZ welke op 14 december 2022 is vastgesteld, alsmede de daarbij behorende algemene bepalingen.

Huurprijsaanpassing
Jaarlijks, op basis van de wijziging van het maand-prijsindexcijfer volgens de consumentenprijsindex reeks CPI-alle huishoudens (2015=100), gepubliceerd door het CBS.

Zekerheidsstelling
Bankgarantie of waarborgsom ter grootte van minimaal drie maanden huurverplichting, inclusief eventuele servicekosten en de over het totaal verschuldigde BTW.

Benieuwd naar dit pand? Plan dan snel een bezichtiging in bij het pand aan de Schipluidenseweg 10 te Wateringen!

Alle door ons verstrekte informatie is geheel vrijblijvend. Ondanks de zorg die wij aan de informatie besteed hebben, aanvaarden wij geen aansprakelijkheid voor schade als gevolg van onvolledigheid, actualiteit of onjuistheid. Bovenstaande informatie mag niet worden beschouwd als een aanbieding of offerte.

Lees meer Lees meer

Kenmerken

  • Huurprijs € 458.000,- kosten koper
  • Status Beschikbaar
  • Bouwjaar 2000
  • Aanvaarding In overleg
  • Aanmeldingsreden In verkoop of verhuur genomen
  • Servicekosten € 125,- per maand
  • Hoofdfunctie Bedrijfsruimte
  • Soort bouw Bestaande bouw
  • Bouwjaar 2000
  • Vrije hoogte 675 cm
  • Oppervlakte bedrijfsruimte ca. 215 m2
  • Woonruimte Geen woonruimte aanwezig
  • Niet overdekte parkeerplaatsen 3
  • Onderhoud binnen Redelijk
  • Onderhoud buiten Goed
Alle kenmerken Alle kenmerken
Vragen of interesse?

Neem contact op met Marc

Lilian Verhuisadvies Aankoop

Geen geschikt pand gevonden?

Schrijf je in als zoeker.

Gratis zoekopdracht

Plattegronden

Vragen over hypotheek

Benieuwd naar wat je kan lenen?

Locatie

    Recent aanbod

    Ons meest recente aanbod

    Wateringen, 2291 PJ

    Maasdijkseweg 120 K

    € 2.250 ,- per maand

    TE HUUR - Maasdijkseweg 120K te Wateringen Bedrijfsruimte op mooie locatie | Westland Bedrijven Centrum,…

    Pand bekijken
    Wateringen, 2291 PC

    Schipluidenseweg 10

    € 458.000 ,- k.k.

    TE KOOP: Schipluidenseweg 10 te Wateringen. (Inruil kleiner bedrijfspand in de omgeving behoort tot de…

    Pand bekijken
    Zoetermeer, 2723 RN

    Stephensonstraat 2 K

    € 289.000,- v.o.n.

    TE KOOP - Stephensonstraat 2K Zoetermeer Bent u op zoek naar een moderne bedrijfsunit op…

    Pand bekijken
    Schipluidenseweg 10 € 458.000 ,- k.k.

    Benieuwd naar de waarde van je pand?

    Marc Westland komt graag bij je langs!

    Maak een afspraak

    Reageren

    Of vraag een bezichtiging aan via whatsapp op nummer 06-33992043

    (Vereist)