Te koop | Bloemenlaan 12 Wateringen
Mijn favorieten
Overzicht
Wateringen, 2292 DB

Bloemenlaan 12

€ 710.000 ,- k.k.
  • Oppervlakte 154 m²
  • Kamers 5
  • Perceel 200 m²
  • Energielabel A
Plan bezichtiging

Omschrijving

Deze moderne, instapklare woning aan de Bloemenlaan 12 in Wateringen combineert ruimte, comfort en stijl met een heerlijk zonnige ligging. Het huis uit 2004 beschikt over twee eigen parkeerplaatsen op de oprit en een royale, strak aangelegde achtertuin op het zuidwesten waar je de hele dag door van de zon kunt genieten. De ligging in de populaire en kindvriendelijke woonwijk Essellanden is ideaal: met winkels, scholen, groenstroken en de uitvalswegen richting de snelweg vlakbij woon je hier centraal en toch rustig.

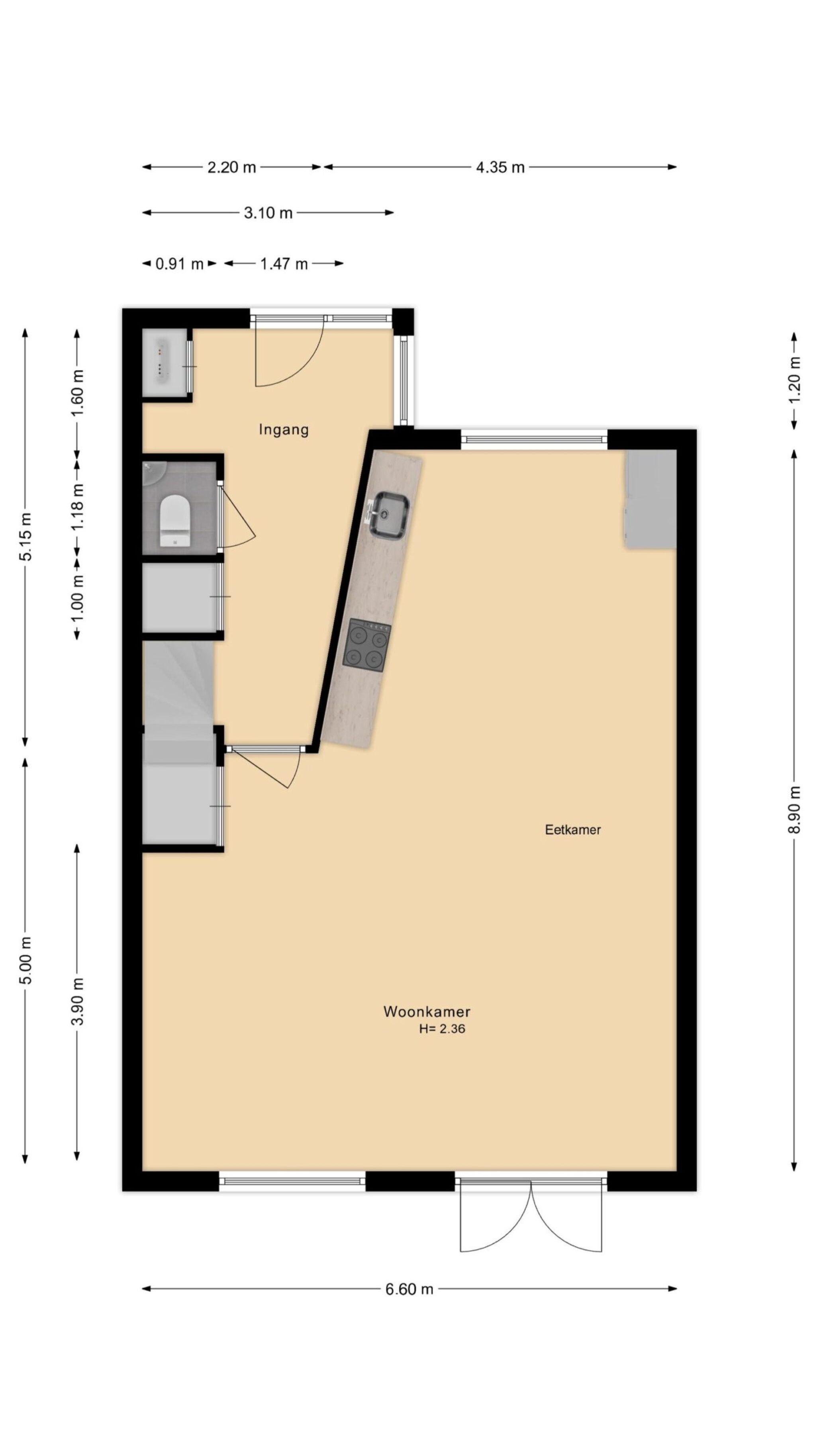
Via de ruime hal met garderobe, meterkast, modern hangend toilet, vaste kast en trapopgang bereik je de sfeervolle woonkamer. Een glazen deur geeft toegang tot de royale leefruimte van circa 50 m², waarbij de breedte van maar liefst 6,60 meter direct opvalt en zorgt voor een bijzonder ruimtelijk gevoel. De strakke wanden, het gestuukte plafond en de stijlvolle pvc-visgraatvloer met comfortabele vloerverwarming geven de parterre een warme en luxe uitstraling.
De eigentijdse zwarte woonkeuken met marmerlook werkblad is volledig uitgevoerd in de stijl van nu en voorzien van hoogwaardige inbouwapparatuur zoals een Quooker, inductiekookplaat met geïntegreerde afzuiging, combi-oven, vaatwasser en koel-vriescombinatie.
Via openslaande deuren stap je de diepe en brede tuin in, waar je dankzij de zuidwestligging perfect zit. Achterin bevindt zich een berging met gezellige overkapping en een achterom, terwijl de ligging aan een groenstrook zorgt voor veel privacy zonder inkijk.

Op de eerste verdieping geeft de overloop toegang tot een modern tweede toilet en drie slaapkamers. De royale slaapkamer van ca. 21 m2 aan de voorzijde is gelegen over de gehele breedte van de woning en voorzien van een vaste kastenwand. De slaapkamers aan de achterzijde meten circa 13 m² en 7 m². De badkamer is in 2021 vernieuwd en straalt hotelkwaliteit uit, met een inloopdouche met rainshower en drainegoot, ligbad, dubbel wastafelmeubel en een strak gestuukt plafond met spots.

De tweede verdieping biedt een overloop met opstelplaats voor de cv-ketel uit 2020, zonneboiler en wasruimte, plus een vierde slaapkamer van circa 16 m² met vaste kast. Via een vlizotrap is de vliering bereikbaar met verrassend veel opbergruimte, ideaal voor spullen die je niet dagelijks nodig hebt.

Deze woning is tot in de puntjes afgewerkt, biedt ruimte, sfeer en gebruiksgemak en is helemaal klaar voor nieuwe bewoners die zonder kluswerk willen intrekken. Wie een compleet afgewerkte woning zoekt op een fijne locatie, voelt zich direct thuis aan de Bloemenlaan 12 in Wateringen.

In de koopovereenkomst zal standaard een ouderdomsclausule worden opgenomen, omdat deze woning ouder dan 20 jaar is.

Interesse in dit huis? Schakel direct je eigen NVM-aankoopmakelaar in. Jouw NVM-aankoopmakelaar komt op voor jouw belang en bespaart je tijd, geld en zorgen.

Lees meer Lees meer

Kenmerken

  • Prijs € 710.000 ,- k.k.
  • Status Verkocht onder voorbehoud
  • Bouwjaar 2004
  • Onderhoud binnen Goed
  • Onderhoud buiten Goed
  • Aanvaarding In overleg
  • Soort woning Eengezinswoning
  • Type woning Tussenwoning
  • Aantal kamers 5
  • Aantal slaapkamers 4
  • Aantal badkamers 1
  • Badkamer voorzieningen Ligbad, wastafelmeubel, inloopdouche
  • Voorzieningen Alarminstallatie, buitenzonwering, zonnecollectoren, dakraam, glasvezel kabel
  • Isolatie Dubbel glas, volledig geisoleerd
  • Soort verwarming Cv ketel
  • Ketel bouwjaar 2020
  • Ketel gas/olie Gas
  • Ketel eigendom Eigendom
  • Energielabel A
  • Woonoppervlakte 154 m2
  • Oppervlakte 200 m2
  • Inhoud 518 m3
  • Oppervlakte externe bergruimte 17 m2
  • Ligging In woonwijk
  • Tuin type (n) Achtertuin, voortuin
  • Hoofdtuin oppervlakte 91 m2
  • Ligging hoofdtuin Zuidwest
  • Parkeerfaciliteit Openbaar parkeren, op eigen terrein
Alle kenmerken Alle kenmerken
Vragen of interesse?

Neem contact op met Nikki

Waardebepaling

Gratis waardebepaling!

Ben je benieuwd naar de waarde van jouw woning? Vraag hier een gratis waardebepaling aan.
Vul je gegevens in en wij komen graag bij je langs.

Gratis waardebepaling

Kan ik deze woning betalen?

Arthur rekent het graag voor je uit.

Plan een adviesgesprek

Video

Plattegronden

360º foto's

Vragen over hypotheek

Benieuwd naar wat je kan lenen?

Schaduwwijzer

Brochures

Recent aanbod

Ons meest recente aanbod

Kwintsheul, 2295 PE

Leeuwerik 25

€ 465.000 ,- k.k.
  • 105 m²
  • 55 m²
  • C

Ben jij op zoek naar een leuk gelegen tussenwoning met een zonnige tuin aan het…

Woning bekijken
's-gravenhage, 2548 ER

Martinus Nijhoffweg 245

€ 450.000 ,- k.k.
  • 87 m²
  • 113 m²
  • A++

Martinus Nijhoffweg 245 in Den Haag biedt je een modern appartement met tuin en veel…

Woning bekijken
Honselersdijk, 2675 AW

Dijkstraat 95 A

€ 1.495 ,- per maand
  • 60 m²

TE HUUR - DIJKSTRAAT 95A IN HONSELERSDIJK Modern 2-kamerappartement in het centrum van Honselersdijk Wonen…

Woning bekijken
Bloemenlaan 12 € 710.000 ,- k.k.
Waardebepaling

Gratis waardebepaling!

Ben je benieuwd naar de waarde van jouw woning? Vraag hier een gratis waardebepaling aan.
Vul je gegevens in en wij komen graag bij je langs.

Gratis waardebepaling

Reageren

Of vraag een bezichtiging aan via whatsapp op nummer 06-33992043

(Vereist)