Te koop - Bloemenlaan 48 - Wateringen
Mijn favorieten
Overzicht
Wateringen, 2292 DB

Bloemenlaan 48

€ 575.000 ,- k.k.
  • Oppervlakte 123 m²
  • Kamers 6
  • Perceel 137 m²
  • Energielabel A
Plan bezichtiging

Omschrijving

Bloemenlaan 48 in Wateringen biedt alles wat je zoekt! Deze uitstekend onderhouden tusseneengezinswoning met royale uitbouw, brede dakkapellen, zonnepanelen (10x) en een zonnige achtertuin (NW) met berging bied je meer ruimte, meer comfort en een geweldige ligging in een rustige straat waar je je direct thuis voelt!

Het bouwjaar van de woning is 2003.

Indeling
Begane grond:
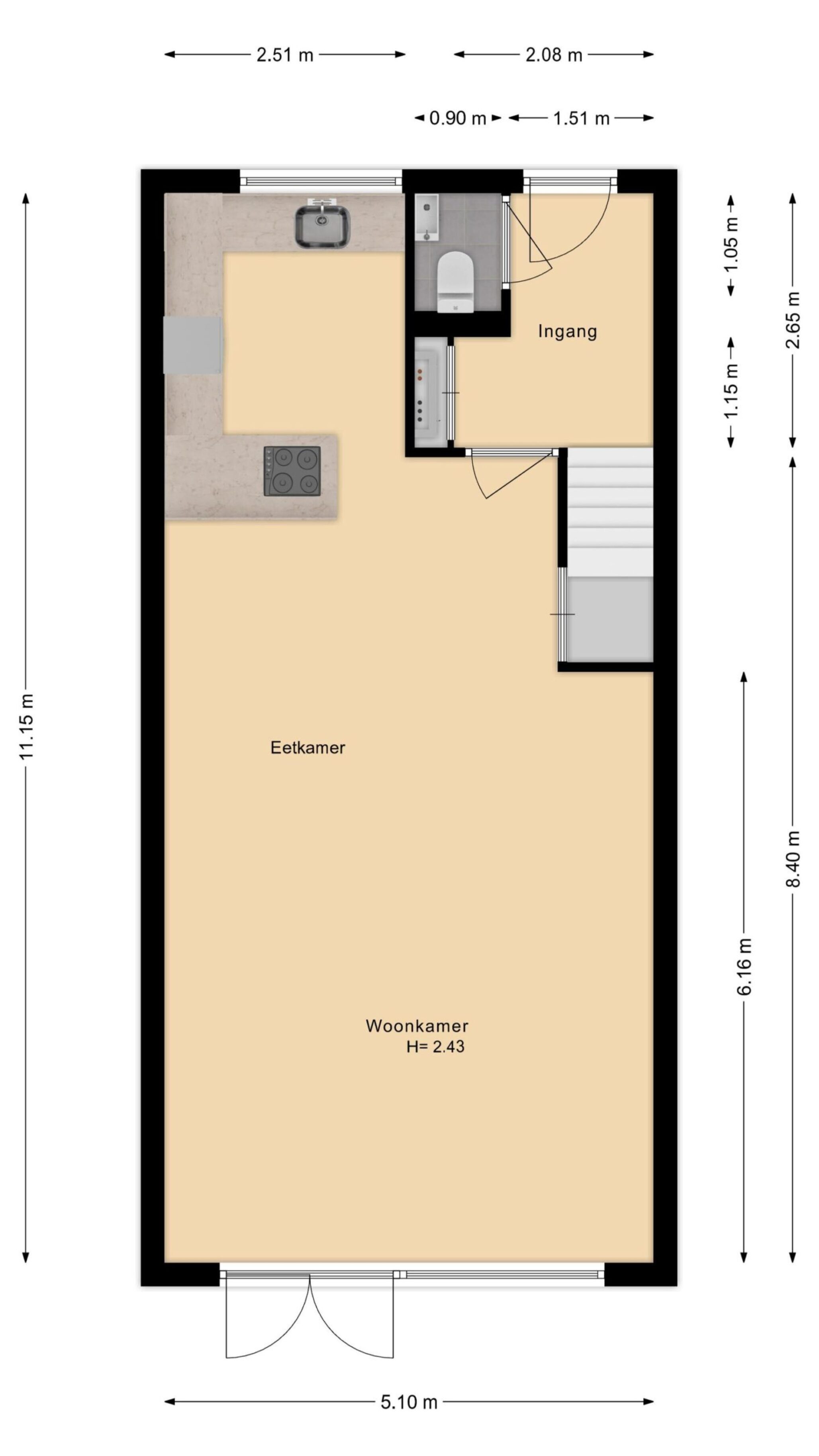
Je loopt via de verzorgde voortuin de hal in met volledig betegeld toilet met fonteintje, meterkast en trapopgang. De ruime woonkamer van ca. 51 m2 (inclusief keuken) voelt indrukwekkend licht door de grote raampartijen en de openslaande deuren naar de tuin. De pvc-vloer met vloerverwarming, strakke wanden, inbouwspots en handige trapkast geven de woonkamer een hoog afwerkingsniveau.

De moderne U-vormige keuken staat aan de voorzijde en heeft hoogglans witte fronten met een stijlvol houtlook blad. De keuken is uitgevoerd met luxe inbouwapparatuur, zoals een koelvriescombinatie, vaatwasser, inductiekookplaat met afzuigkap, quooker, oven en magnetron.

Via de dubbele deuren stap je de heerlijke tuin op het noordwesten in. De tuin is onderhoudsvriendelijk en heeft een overkapping, stenen berging en elektrische zonwering waardoor je een geweldige plek krijgt om te zitten en te genieten van het buitenleven.

Eerste verdieping:
De overloop geeft toegang tot drie royale slaapkamers. De grootste slaapkamer (ca. 13 m2) ligt aan de voorzijde en heeft een laminaatvloer. De tweede slaapkamer (ca. 9 m2) ligt aan de achterzijde en heeft ook een laminaatvloer en tevens een inbouwkast. De derde slaapkamer (ca. 10 m2) ligt eveneens aan de achterzijde en heeft wederom een laminaatvloer.

De badkamer is helemaal van nu en straalt luxe uit met een heerlijk ligbad, royale inloopdouche, hangend toilet en een stijlvol wastafelmeubel dat de ruimte een eigentijdse uitstraling geeft. De badkamer is ook voorzien van vloerverwarming.
Buiten de slaapkamers en badkamer zijn de trappen en overlopen voorzien van vloerbedekking.

Tweede verdieping:
De tweede verdieping heeft een riante overloop met opstelplaats voor de cv-ketel (2020) en aansluiting voor de wasmachine. Je vindt hier bovendien twee indrukwekkend ruime slaapkamers, beide met een laminaatvloer en veel licht door de brede dakkapellen.

Kortom, deze woning is zeker een bezichtiging waard! Met energielabel A, volledige isolatie en tien zonnepanelen krijg je maximale energiezuinigheid! De ruime uitbouw en de dakkapellen aan voor- en achterzijde geven je een grootse hoeveelheid leefruimte met vijf volwaardige slaapkamers!
Bloemenlaan 48 bied je een thuis waar je jarenlang met plezier woont!

In de koopovereenkomst zal standaard een ouderdomsclausule worden opgenomen, omdat deze woning ouder dan 20 jaar is.

Interesse in dit huis? Schakel direct je eigen NVM-aankoopmakelaar in. Jouw NVM-aankoopmakelaar komt op voor jouw belang en bespaart je tijd, geld en zorgen.

Lees meer Lees meer

Kenmerken

  • Prijs € 575.000 ,- k.k.
  • Status Beschikbaar
  • Bouwjaar 2003
  • Onderhoud binnen Goed
  • Onderhoud buiten Goed
  • Aanvaarding In overleg
  • Soort woning Eengezinswoning
  • Type woning Tussenwoning
  • Aantal kamers 6
  • Aantal slaapkamers 5
  • Aantal badkamers 1
  • Badkamer voorzieningen Ligbad, toilet, douche, wastafel, wastafelmeubel, vloerverwarming
  • Voorzieningen Mechanische ventilatie, rolluiken, tv kabel, buitenzonwering, dakraam, glasvezel kabel, zonnepanelen
  • Isolatie Gedeeltelijk dubbel glas, volledig geisoleerd
  • Soort verwarming Cv ketel, vloerverwarming gedeeltelijk
  • Ketel bouwjaar 2020
  • Ketel gas/olie Gas
  • Ketel eigendom Eigendom
  • Energielabel A
  • Woonoppervlakte 123 m2
  • Oppervlakte 137 m2
  • Inhoud 421 m3
  • Oppervlakte externe bergruimte 15 m2
  • Ligging In woonwijk
  • Tuin type (n) Achtertuin, voortuin
  • Hoofdtuin oppervlakte 52 m2
  • Ligging hoofdtuin Noordwest
  • Parkeerfaciliteit Openbaar parkeren
Alle kenmerken Alle kenmerken
Vragen of interesse?

Neem contact op met Caroline

Waardebepaling

Gratis waardebepaling!

Ben je benieuwd naar de waarde van jouw woning? Vraag hier een gratis waardebepaling aan.
Vul je gegevens in en wij komen graag bij je langs.

Gratis waardebepaling

Kan ik deze woning betalen?

Arthur rekent het graag voor je uit.

Plan een adviesgesprek

Video

Plattegronden

360º foto's

Vragen over hypotheek

Benieuwd naar wat je kan lenen?

Schaduwwijzer

Brochures

Recent aanbod

Ons meest recente aanbod

's-gravenhage, 2548 JB

Miamihof 20

€ 565.000 ,- k.k.
  • 129 m²
  • 36 m²
  • A+

Miamihof 20 staat voor comfortabel wonen op een toplocatie in Den Haag (Wateringse Veld). Deze…

Woning bekijken
Kwintsheul, 2295 LH

Kerkstraat 36 A

€ 625.000 ,- k.k.
  • 136 m²
  • 99 m²
  • B

Verzorgde en uitgebouwde twee-onder-een-kapwoning met ruime zonnige tuin, garage en uitstekende energiezuinigheid. In een geliefde…

Woning bekijken
's-gravenzande, 2692 CA

H. Roland Holstweg 29

€ 525.000 ,- k.k.
  • 107 m²
  • 59 m²
  • A

Op zoek naar een instapklare woning? Kom dan langs bij de H. Roland Holstweg 29…

Woning bekijken
Te koop - Bloemenlaan 48 - Wateringen
Bloemenlaan 48 € 575.000 ,- k.k.
Waardebepaling

Gratis waardebepaling!

Ben je benieuwd naar de waarde van jouw woning? Vraag hier een gratis waardebepaling aan.
Vul je gegevens in en wij komen graag bij je langs.

Gratis waardebepaling

Reageren

Of vraag een bezichtiging aan via whatsapp op nummer 06-33992043

(Vereist)