Te koop - H. Roland Holstweg 29 - 's-Gravenzande
Mijn favorieten
Overzicht
's-gravenzande, 2692 CA

H. Roland Holstweg 29

€ 525.000 ,- k.k.
  • Oppervlakte 107 m²
  • Kamers 5
  • Perceel 124 m²
  • Energielabel A
Plan bezichtiging

Omschrijving

Op zoek naar een instapklare woning? Kom dan langs bij de H. Roland Holstweg 29 in ’s-Gravenzande. Deze woning is volledig gemoderniseerd, heeft een hoog afwerkingsniveau en is daardoor direct te betrekken. Je woont hier in een rustige en kindvriendelijke woonwijk, terwijl het centrum en alle voorzieningen op loopafstand liggen. De diepe en zonnige achtertuin op het zuiden geeft veel zon én privacy. Alles is moderne afgewerkt en heeft een frisse uitstraling. Wacht dan niet en plan een bezichtiging!

De woning is gebouwd in 1991 en staat op een perceel van 124 m² eigen grond.

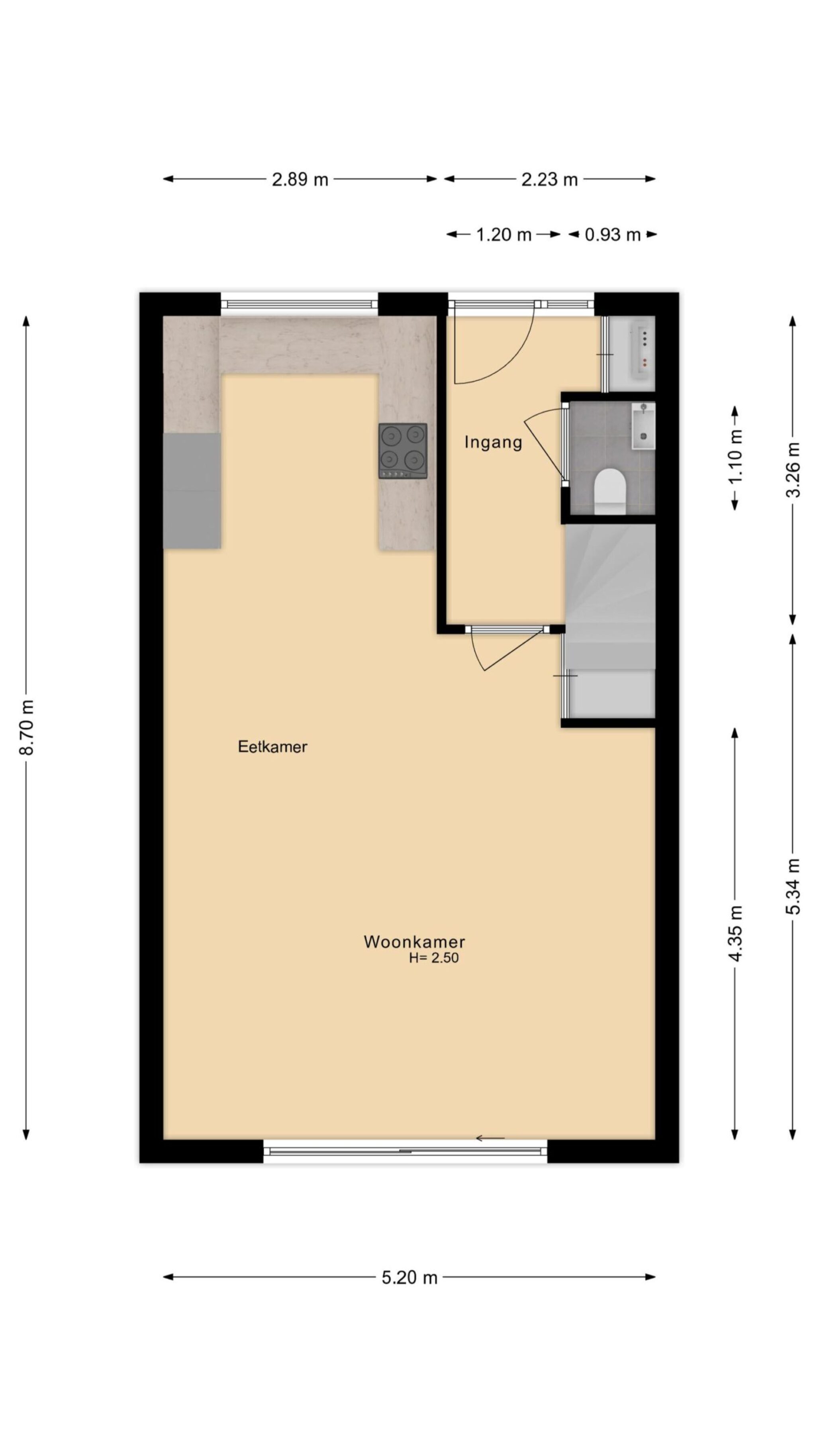
Begane grond:
Via de netjes aangelegde voortuin bereik je de entree van de woning. In de hal vind je de meterkast, garderobe, het moderne toilet en de trap naar de eerste verdieping. Vanuit hier loop je de royale en lichte woonkamer in van ongeveer ca. 35 m², inclusief de open keuken. De keramische parketvloer met vloerverwarming en de airco geven maximaal comfort. De wanden en het plafond zijn recent strak afgewerkt. De trapkast geeft extra bergruimte.

De moderne keuken (2015) heeft een U-opstelling, greeploze fronten en een hoogglans witte afwerking. De keuken is luxe uitgevoerd met een koelkast, aparte vriezer, combi-oven, gaskookplaat, afzuigkap en vaatwasser.

De diepe achtertuin op het zuiden is een van de grootste troeven van deze woning. De tuin ligt vrij, biedt optimale privacy en heeft een stenen berging met elektra en een achterom. Een fijne plek om van het buitenleven te genieten.

Eerste verdieping:
Door de opbouw zijn drie bijzonder ruime slaapkamers ontstaan. De masterbedroom (ca. 15 m²) is recent geschilderd, heeft vloerbedekking en een airco voor optimaal comfort. De tweede slaapkamer (ca. 10 m²) aan de achterzijde is net zo verzorgd, met vloerbedekking, een frisse afwerking en een grote kastenwand die maximale opbergruimte biedt. De derde slaapkamer (ca. 9 m²) ligt aan de voorzijde en vormt een ideale werk-, slaap- of kinderkamer.

De badkamer is volledig betegeld en modern ingericht. De ruime inloopdouche, het hangende toilet, de handdoekradiator en de dubbele wastafel met extra kastruimte maken het een praktische en luxe ruimte.

Tweede verdieping:
De open zolder is bijzonder netjes afgewerkt met een laminaatvloer, dakraam en knieschotten. De praktische berging met de cv-ketel en wasmachineaansluiting maakt deze verdieping compleet. Je creëert hier moeiteloos een ruime vierde slaapkamer.

De woning heeft het energielabel A en beschikt over 11 zonnepanelen. Je woont hier energiezuinig en voorbereid op de toekomst.

Kortom: deze woning wil je niet missen. De ligging, de ruimte en het afwerkingsniveau maken dit een woning die je zonder moeite betrekt. Bel voor een bezichtiging van deze instapklare, moderne woning aan de H. Roland Holstweg 29 in ’s-Gravenzande en ervaar het zelf.

In de koopovereenkomst zal standaard een ouderdomsclausule worden opgenomen, omdat deze woning ouder dan 20 jaar is. En omdat de woning voor 1990 is gebouwd, wordt er eveneens standaard een asbestclausule opgenomen.

Interesse in dit huis? Schakel direct je eigen NVM-aankoopmakelaar in. Jouw NVM-aankoopmakelaar komt op voor jouw belang en bespaart je tijd, geld en zorgen.

Lees meer Lees meer

Kenmerken

  • Prijs € 525.000 ,- k.k.
  • Status Beschikbaar
  • Bouwjaar 1991
  • Onderhoud binnen Goed
  • Onderhoud buiten Goed
  • Aanvaarding In overleg
  • Soort woning Eengezinswoning
  • Type woning Tussenwoning
  • Aantal kamers 5
  • Aantal slaapkamers 4
  • Aantal badkamers 1
  • Badkamer voorzieningen Toilet, dubbele wastafel, inloopdouche
  • Voorzieningen Mechanische ventilatie, alarminstallatie, tv kabel, buitenzonwering, airconditioning, schuifpui, dakraam, glasvezel kabel, zonnepanelen
  • Isolatie Dakisolatie, muurisolatie, vloerisolatie, dubbel glas
  • Soort verwarming Cv ketel
  • Ketel bouwjaar 2015
  • Ketel gas/olie Gas
  • Ketel eigendom Eigendom
  • Energielabel A
  • Woonoppervlakte 107 m2
  • Oppervlakte 124 m2
  • Inhoud 376 m3
  • Oppervlakte externe bergruimte 6 m2
  • Ligging Aan rustige weg, in woonwijk
  • Tuin type (n) Achtertuin, voortuin
  • Hoofdtuin oppervlakte 59 m2
  • Ligging hoofdtuin Zuid
  • Parkeerfaciliteit Openbaar parkeren
Alle kenmerken Alle kenmerken
Vragen of interesse?

Neem contact op met Nikki

Waardebepaling

Gratis waardebepaling!

Ben je benieuwd naar de waarde van jouw woning? Vraag hier een gratis waardebepaling aan.
Vul je gegevens in en wij komen graag bij je langs.

Gratis waardebepaling

Kan ik deze woning betalen?

Arthur rekent het graag voor je uit.

Plan een adviesgesprek

Video

Plattegronden

360º foto's

Vragen over hypotheek

Benieuwd naar wat je kan lenen?

Schaduwwijzer

Brochures

Recent aanbod

Ons meest recente aanbod

Wateringen, 2291 ZX

Leifruit 5

€ 675.000 ,- k.k.
  • 140 m²
  • 55 m²
  • A+

Moderne instapklare tussenwoning uit 2019 met hoogwaardige afwerking Op zoek naar een nieuwe, instapklare woning…

Woning bekijken
's-gravenhage, 2543 ST

Vrederustlaan 62

€ 225.000 ,- k.k.
  • 61 m²

In verband met de grote animo is een bezichtigingsafspraak niet meer mogelijk. Vrederustlaan 62 in…

Woning bekijken
Wateringen, 2291 ZP

Boetersstraat 41

€ 585.000 ,- k.k.
  • 122 m²
  • 48 m²
  • A

In de geliefde en kindvriendelijke nieuwbouwwijk Juliahof ligt aan de Boetersstraat 41 in Wateringen deze…

Woning bekijken
Te koop - H. Roland Holstweg 29 - 's-Gravenzande
H. Roland Holstweg 29 € 525.000 ,- k.k.
Waardebepaling

Gratis waardebepaling!

Ben je benieuwd naar de waarde van jouw woning? Vraag hier een gratis waardebepaling aan.
Vul je gegevens in en wij komen graag bij je langs.

Gratis waardebepaling

Reageren

Of vraag een bezichtiging aan via whatsapp op nummer 06-33992043

(Vereist)