Te Koop | Kerkstraat 36A Kwintsheul
Mijn favorieten
Overzicht
Kwintsheul, 2295 LH

Kerkstraat 36 A

€ 625.000 ,- k.k.
  • Oppervlakte 136 m²
  • Kamers 7
  • Perceel 276 m²
  • Energielabel B
Plan bezichtiging

Omschrijving

Verzorgde en uitgebouwde twee-onder-een-kapwoning met ruime zonnige tuin, garage en uitstekende energiezuinigheid.

In een geliefde straat, op loopafstand van voorzieningen, staat Kerkstraat 36 A: een verzorgde en uitstekend onderhouden twee-onder-een-kapwoning met een royale tuin op het zuidoosten, een garage van ca. 23 m² en eigen oprit. De woning is door de jaren heen zorgvuldig gemoderniseerd en uitgebreid – onder meer met een aanbouw en dakkapellen (2007) – en biedt een ruim woonoppervlak van ca. 136 m² op een perceel van ca. 276 m².

Met volledige isolatie, kunststof kozijnen met HR++-glas, 13 zonnepanelen, airconditioning en een recent vernieuwde cv-ketel (2023) combineert deze woning wooncomfort met energiezuinigheid.

Indeling
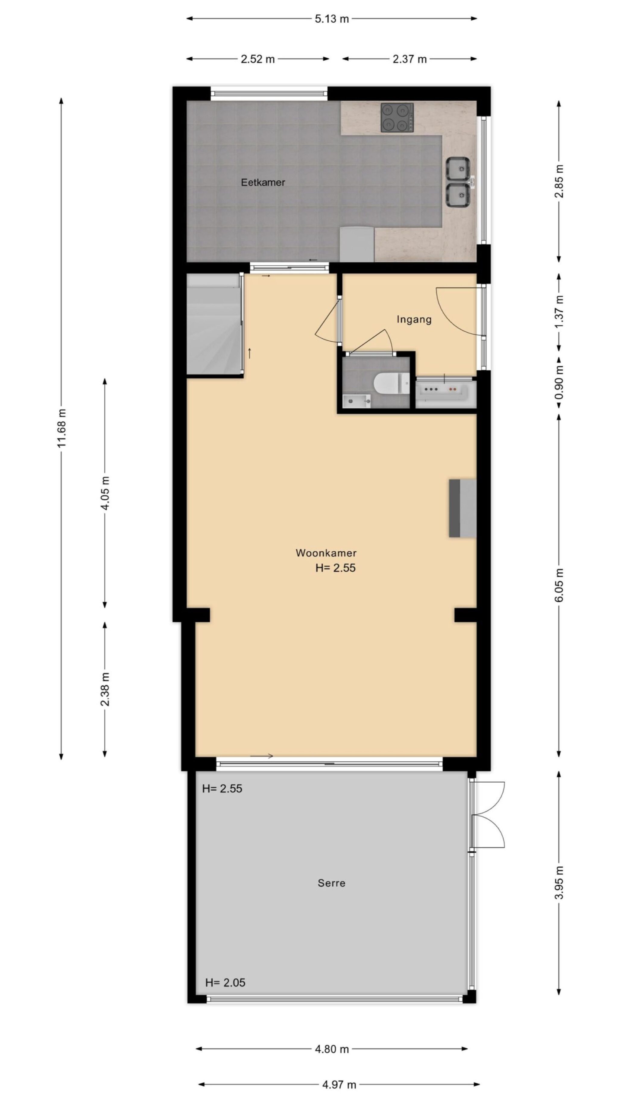
Begane grond
Parkeren kan comfortabel op de eigen oprit, direct voor de deur. Via de entree kom je in de hal met meterkast, garderobe, toilet met fonteintje en toegang tot de woonkamer en keuken.

Aan de voorzijde bevindt zich de gezellige half-open keuken in U-opstelling, voorzien van een bruin werkblad en grijze kastfronten. De keuken beschikt over diverse inbouwapparatuur, waaronder een 5-pits gaskookplaat met afzuigkap, combi-oven, koelkast, vriezer en dubbele spoelbak met mengkraan.

De uitgebouwde woonkamer aan de achterzijde biedt extra leefruimte en is heerlijk licht dankzij de aangebouwde serre. Deze serre vormt een verlengstuk van de woonkamer en is ideaal als tweede zitruimte of als plek om vroeg in het jaar al van de zon te genieten. Dankzij de openslaande deuren loop je zo door naar de overkapping met gezellige zithoek – perfect voor zomeravonden met familie of vrienden.

De achtertuin is ruim van formaat, onderhoudsvriendelijk betegeld en gunstig gelegen op het zonnige zuidoosten. Tevens bevindt zich hier de garage (ca. 23 m²) met voldoende ruimte voor hobby, opslag of werkplek.

Eerste verdieping
Via de vaste trap bereik je de ruime overloop met toegang tot drie slaapkamers en de badkamer.
Aan de voorzijde ligt een woningbrede slaapkamer van ca. 10 m² met toegang tot het balkon dat uitzicht biedt op de welbekende Kerkstraat (ligging noordwest). Aan de achterzijde bevinden zich nog twee slaapkamers van ca. 8 m² en 9 m².

De badkamer is in 2008 vergroot en volledig vernieuwd. Uitgevoerd in een moderne zwart-witte kleurstelling met inloopdouche, ligbad, tweede toilet en wastafelmeubel. Het gestuukte plafond met inbouwspots en de vloerverwarming maakt het geheel helemaal compleet.

Tweede verdieping
Via een vaste trap kom je terecht op de tweede verdieping, welke goed is ingedeeld. Vanaf de overloop met ingebouwde kast is toegang tot een technische ruimte (met dakkapel), waar zich de aansluitingen voor wasmachine en droger bevinden, samen met de cv-ketel (2023) en omvormer van de zonnepanelen.

Aan de andere zijde van de overloop ligt een aparte bergkamer (ook met dakkapel), momenteel in gebruik als opslag.

Tot slot biedt deze verdieping een vierde slaapkamer van ca. 11 m², eveneens voorzien van een dakkapel en een eigen wastafel.

Kerkstraat 36A is een verzorgde, energiezuinige en goed onderhouden woning, die in de loop der jaren met aandacht is uitgebreid en gemoderniseerd. Dankzij de nette afwerking, de royale leefruimtes en de zonnige tuin is dit een woning waar je zó in kunt trekken en nog jarenlang met plezier zult wonen, zowel binnen als buiten.

In de koopovereenkomst zal standaard een ouderdomsclausule worden opgenomen, omdat deze woning ouder dan 20 jaar is. En omdat de woning voor 1990 is gebouwd, wordt er eveneens standaard een asbestclausule opgenomen. Tevens is voor deze woning de niet-zelfbewoningsclausule van toepassing.

Interesse in dit huis? Schakel direct je eigen NVM-aankoopmakelaar in. Jouw NVM-aankoopmakelaar komt op voor jouw belang en bespaart je tijd, geld en zorgen.

Lees meer Lees meer

Kenmerken

  • Prijs € 625.000 ,- k.k.
  • Status Beschikbaar
  • Bouwjaar 1969
  • Onderhoud binnen Goed
  • Onderhoud buiten Goed
  • Aanvaarding In overleg
  • Soort woning Eengezinswoning
  • Type woning Twee onder een kapwoning
  • Aantal kamers 7
  • Aantal slaapkamers 4
  • Aantal badkamers 1
  • Badkamer voorzieningen Ligbad, toilet, wastafelmeubel, inloopdouche, vloerverwarming
  • Voorzieningen Tv kabel, airconditioning, rookkanaal, schuifpui, glasvezel kabel, zonnepanelen, natuurlijke ventilatie
  • Isolatie Volledig geisoleerd
  • Soort verwarming Cv ketel, vloerverwarming gedeeltelijk
  • Ketel bouwjaar 2023
  • Ketel gas/olie Gas
  • Energielabel B
  • Woonoppervlakte 136 m2
  • Oppervlakte 276 m2
  • Inhoud 606 m3
  • Oppervlakte externe bergruimte 23 m2
  • Ligging In centrum
  • Tuin type (n) Achtertuin, voortuin
  • Hoofdtuin oppervlakte 99 m2
  • Ligging hoofdtuin Zuidoost
  • Parkeerfaciliteit Openbaar parkeren, op eigen terrein
Alle kenmerken Alle kenmerken
Vragen of interesse?

Neem contact op met Caroline

Waardebepaling

Gratis waardebepaling!

Ben je benieuwd naar de waarde van jouw woning? Vraag hier een gratis waardebepaling aan.
Vul je gegevens in en wij komen graag bij je langs.

Gratis waardebepaling

Kan ik deze woning betalen?

Arthur rekent het graag voor je uit.

Plan een adviesgesprek

Video

Plattegronden

360º foto's

Vragen over hypotheek

Benieuwd naar wat je kan lenen?

Schaduwwijzer

Recent aanbod

Ons meest recente aanbod

Wateringen, 2292 DB

Bloemenlaan 48

€ 575.000 ,- k.k.
  • 123 m²
  • 52 m²
  • A

Bloemenlaan 48 in Wateringen biedt alles wat je zoekt! Deze uitstekend onderhouden tusseneengezinswoning met royale…

Woning bekijken
's-gravenhage, 2548 JB

Miamihof 20

€ 565.000 ,- k.k.
  • 129 m²
  • 36 m²
  • A+

Miamihof 20 staat voor comfortabel wonen op een toplocatie in Den Haag (Wateringse Veld). Deze…

Woning bekijken
's-gravenzande, 2692 CA

H. Roland Holstweg 29

€ 525.000 ,- k.k.
  • 107 m²
  • 59 m²
  • A

Op zoek naar een instapklare woning? Kom dan langs bij de H. Roland Holstweg 29…

Woning bekijken
Kerkstraat 36 A € 625.000 ,- k.k.
Waardebepaling

Gratis waardebepaling!

Ben je benieuwd naar de waarde van jouw woning? Vraag hier een gratis waardebepaling aan.
Vul je gegevens in en wij komen graag bij je langs.

Gratis waardebepaling

Reageren

Of vraag een bezichtiging aan via whatsapp op nummer 06-33992043

(Vereist)