Te koop | Midden Woerd 49 Naaldwijk
Mijn favorieten
Overzicht
Naaldwijk, 2671 DL

Midden Woerd 49

€ 510.000 ,- k.k.
  • Oppervlakte 124 m²
  • Kamers 6
  • Perceel 141 m²
  • Energielabel B
Plan bezichtiging

Omschrijving

Midden Woerd 49 in Naaldwijk is een heerlijk ruime en goed onderhouden tussenwoning met maar liefst vijf slaapkamers en een zonnige tuin. De woning ligt aan een autovrije straat in een rustige buurt met voldoende parkeergelegenheid. Het levendige centrum van Naaldwijk is op loopafstand.

Dankzij de uitbouw aan de voorzijde, de twee dakkapellen en de moderne afwerking biedt deze woning een perfecte mix van comfort en ruimte. De verzorgde voortuin geeft toegang tot de entree. Hier vind je de hal met modern hangend toilet en meterkast.

De leefruimte op de begane grond is voorzien van een eikenhouten vloer en grote raampartijen waar het daglicht mooi door binnenvalt. De woonkamer ligt aan de voorzijde en aan de tuinzijde is ruimte voor een royale eethoek naast de open keuken. Deze moderne, witte greeploze keuken is uitgerust met luxe inbouwapparatuur zoals een stoomoven, combioven, Quooker, inductiekookplaat, vaatwasser, koelkast en vriezer. Het verlaagde plafond met spotverlichting zorgt hier voor een stijlvolle sfeer.

Op de eerste verdieping liggen drie goede slaapkamers. De slaapkamer aan de achterzijde is extra praktisch ingedeeld met een eigen inloopkast. De moderne badkamer heeft een inloopdouche met sunshower, wastafel met meubel en tweede toilet.

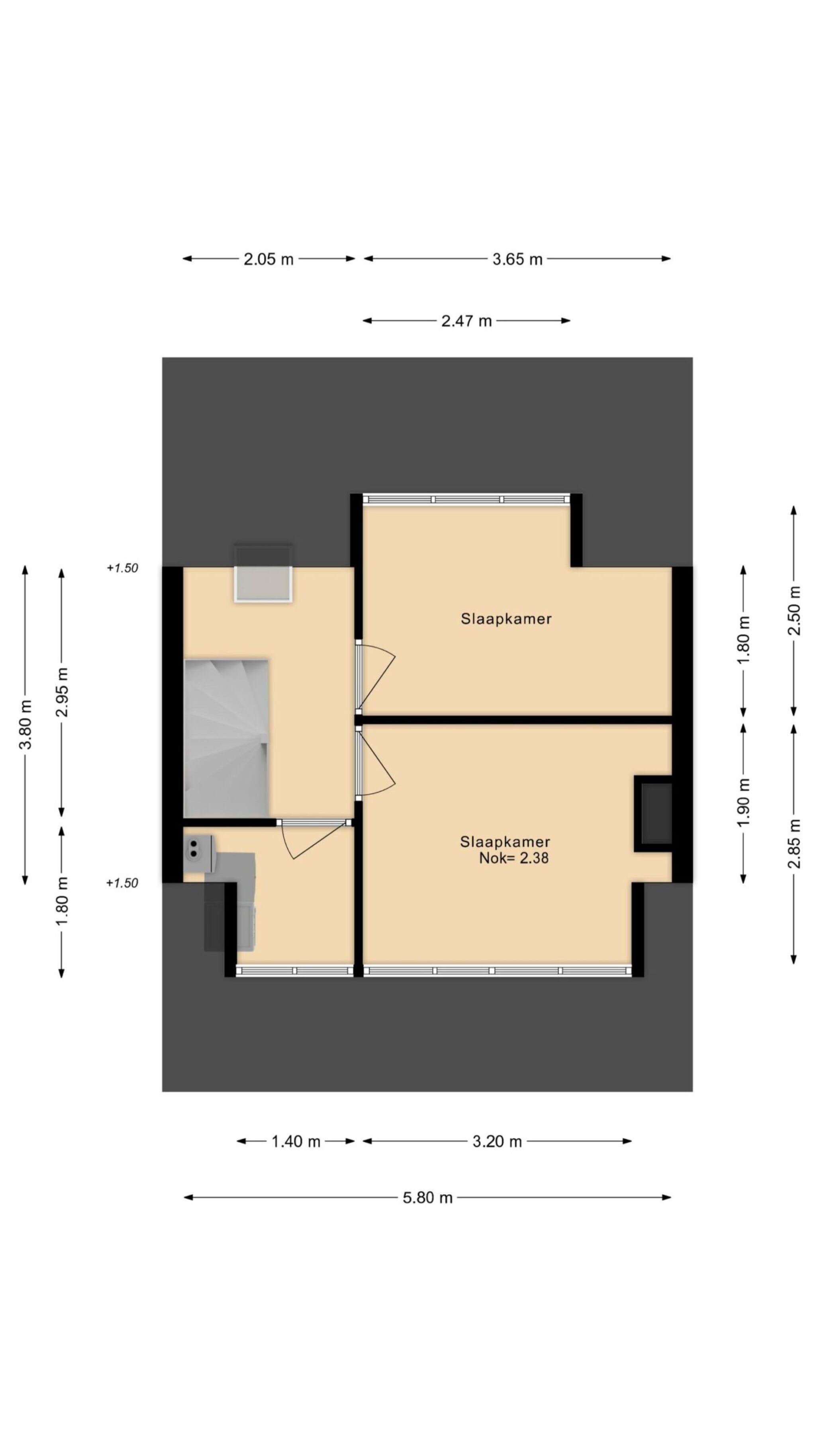
De tweede verdieping is verrassend licht en ruim dankzij twee dakkapellen. Hier zijn nog twee comfortabele slaapkamers gerealiseerd. De slaapkamer aan de voorzijde is momenteel ingericht als kantoorruimte met een ruim bureau en voldoende kastruimte. In de aparte wasruimte bevindt zich de cv-combiketel (2023).

De achtertuin is verzorgd aangelegd en voorzien van een stenen berging. De gunstige ligging op het noordwesten maakt dat je in de loop van de ochtend tot in de avond volop kunt genieten van de zomerzon. Via het achterom is de tuin gemakkelijk bereikbaar. Op de begane grond en de 2e verdieping is de woning voorzien van elektrisch bediende zonwering.
Kortom, Midden Woerd 49 in Naaldwijk is een instapklare en royale woning met een zonnige tuin, vijf slaapkamers en een fijne ligging: ideaal voor wie comfortabel en rustig wil wonen dichtbij alle voorzieningen.

In de koopovereenkomst zal standaard een ouderdomsclausule worden opgenomen, omdat deze woning ouder dan 20 jaar is. En omdat de woning voor 1990 is gebouwd, wordt er eveneens standaard een asbestclausule opgenomen.

Interesse in dit huis? Schakel direct je eigen NVM-aankoopmakelaar in. Jouw NVM-aankoopmakelaar komt op voor jouw belang en bespaart je tijd, geld en zorgen.

Lees meer Lees meer

Kenmerken

  • Prijs € 510.000 ,- k.k.
  • Status Verkocht onder voorbehoud
  • Bouwjaar 1977
  • Onderhoud binnen Goed
  • Onderhoud buiten Goed
  • Aanvaarding In overleg
  • Soort woning Eengezinswoning
  • Type woning Tussenwoning
  • Aantal kamers 6
  • Aantal slaapkamers 5
  • Aantal badkamers 1
  • Badkamer voorzieningen Toilet, douche, wastafelmeubel
  • Voorzieningen Mechanische ventilatie, alarminstallatie, buitenzonwering, glasvezel kabel
  • Isolatie Vloerisolatie, dubbel glas
  • Soort verwarming Cv ketel
  • Ketel bouwjaar 2023
  • Ketel gas/olie Gas
  • Ketel eigendom Eigendom
  • Energielabel B
  • Woonoppervlakte 124 m2
  • Oppervlakte 141 m2
  • Inhoud 450 m3
  • Oppervlakte externe bergruimte 10 m2
  • Ligging Aan rustige weg, in woonwijk
  • Tuin type (n) Achtertuin, voortuin
  • Hoofdtuin oppervlakte 54 m2
  • Ligging hoofdtuin Noordwest
  • Parkeerfaciliteit Openbaar parkeren
Alle kenmerken Alle kenmerken
Vragen of interesse?

Neem contact op met Anneke

Waardebepaling

Gratis waardebepaling!

Ben je benieuwd naar de waarde van jouw woning? Vraag hier een gratis waardebepaling aan.
Vul je gegevens in en wij komen graag bij je langs.

Gratis waardebepaling

Kan ik deze woning betalen?

Arthur rekent het graag voor je uit.

Plan een adviesgesprek

Video

Plattegronden

360º foto's

Vragen over hypotheek

Benieuwd naar wat je kan lenen?

Schaduwwijzer

Brochures

Recent aanbod

Ons meest recente aanbod

Kwintsheul, 2295 NA

De Imker 9

€ 400.000 ,- k.k.
  • 87 m²
  • 92 m²
  • E

Welkom bij De Imker 9 in het knusse Kwintsheul! Deze hoekwoning van ca. 87 m2…

Woning bekijken
Poeldijk, 2685 WJ

Duinrel 14

€ 625.000 ,- k.k.
  • 139 m²
  • 42 m²
  • A

Luxe, licht en ruimte komen samen in deze moderne tussenwoning aan Duinrel 14 in Poeldijk.…

Woning bekijken
Kwintsheul, 2295 LH

Kerkstraat 36

€ 765.000 ,- k.k.
  • 144 m²
  • 210 m²
  • D

Aan de geliefde Kerkstraat 36 in Kwintsheul staat deze sfeervolle, vrijstaande woning uit 1974, gelegen…

Woning bekijken
Midden Woerd 49 € 510.000 ,- k.k.
Waardebepaling

Gratis waardebepaling!

Ben je benieuwd naar de waarde van jouw woning? Vraag hier een gratis waardebepaling aan.
Vul je gegevens in en wij komen graag bij je langs.

Gratis waardebepaling

Reageren

Of vraag een bezichtiging aan via whatsapp op nummer 06-33992043

(Vereist)